Geometra Antonio Alfieri
esperto in pratiche edilizie, catastali e consulenze
Home
Chi sono
Cosa faccio
Cosa ho fatto in passato
Come potete trovarmi
Home
»
Cosa ho fatto in passato
»
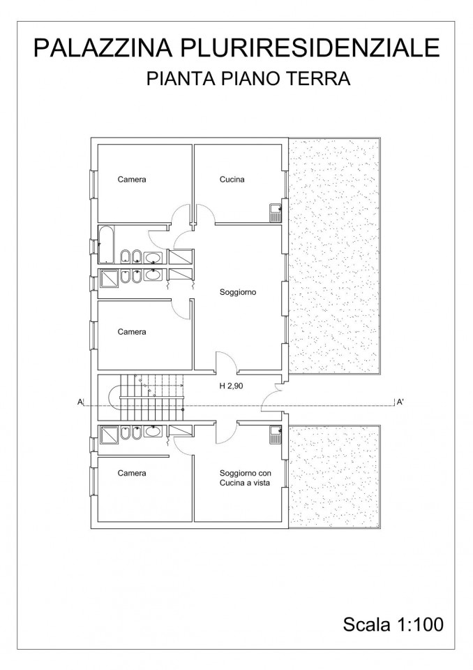
ESAME DI STATO 2014
» Immagine 3/9
SlideShow
<<
>>
3/9